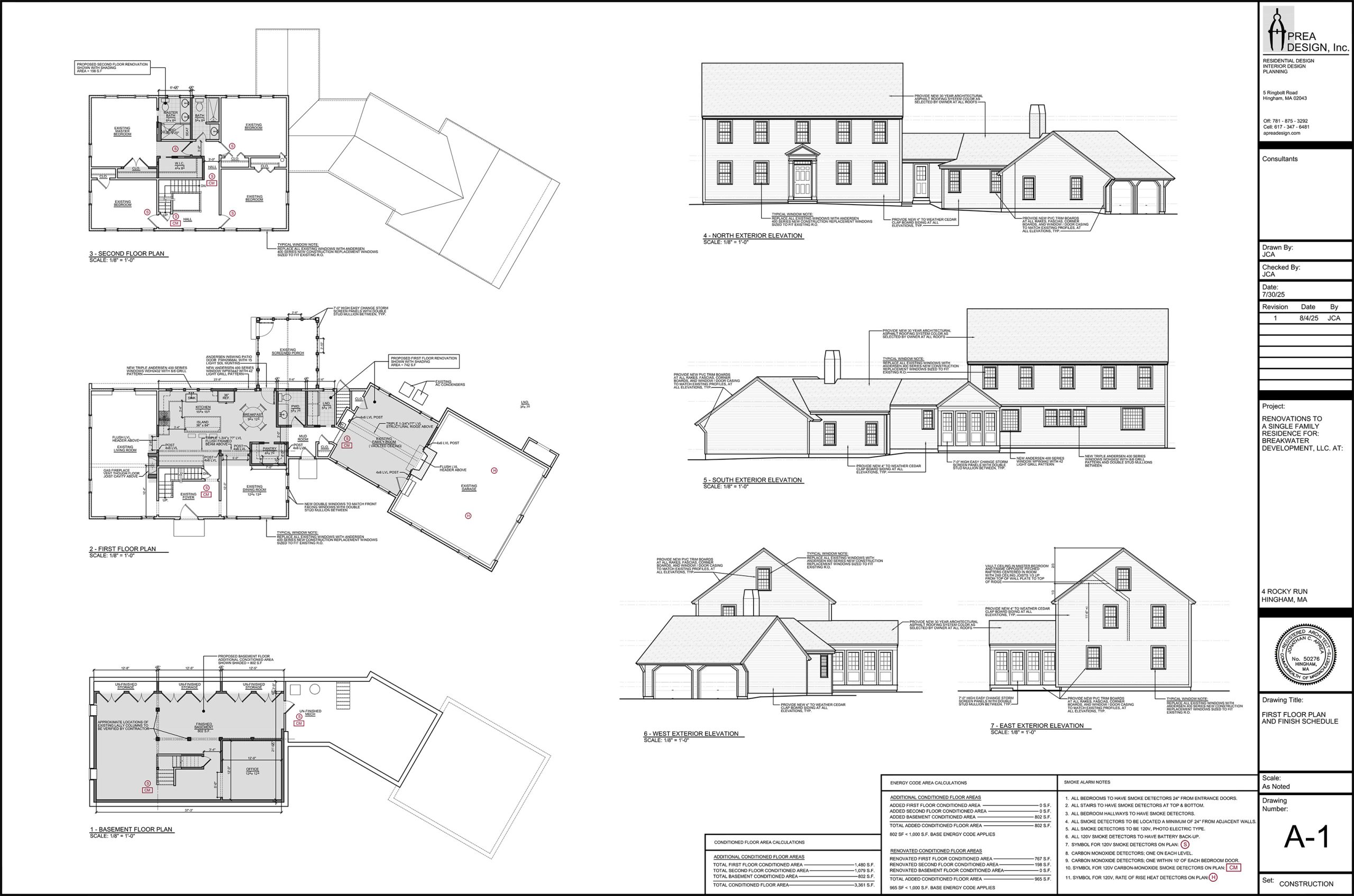
4 Rocky Run, Hingham

5 Bed | 4 Full 1 Half Bath | 2 Car Garage

Video

Renderings

Floor Plans

Plot Plan